215 W 7th Street #307

Los Angeles, CA 90014

$ 429,000

Price

1

Beds

1

Baths

750 Sq. Ft.

$572 / Sq. Ft.

3 Days On Market

Favorite

Share

Have You Been Pre-Qualified? Start Now

Listing provided by agent Yuri Huxley BRE# 01917264 at Coldwell Banker Realty.

Last Updated: 1 days ago

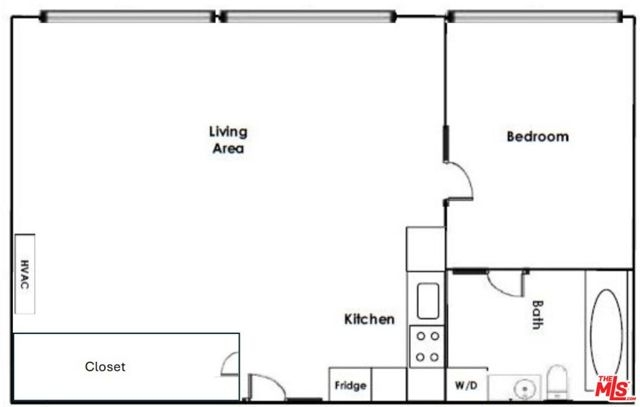
Bright south-facing 1 bed/1 bath live/work loft at the historic Bartlett Lofts. The historic building currently benefits from the Mills Act contract, for nearly 70% off property taxes annually. This south-facing loft features rare oversized windows unique to only a few units for an abundance of natural light. In true urban loft style, there are concrete floors throughout and soaring 10ft+ ceilings. The open plan living space flows seamlessly into the kitchen and there's a completely separate south facing bedroom with a huge window. The ensuite bathroom features a large soaking tub and stackable W/D unit inside. There is a powerful heating and AC unit in the living area and large storage closet near the entry. The building features limited rentable parking spaces and there are many paid monthly parking options nearby. Building amenities include 24/7 front desk security, a breathtaking nearly 360-degree rooftop deck/lounge area, and courtyard. Situated in the heart of the historic core with a Walk Score of 98, you're within a few blocks of the best of DTLA, such as Grand Central Market, Restaurant Row, Whole Foods, Ralphs, Apple Tower Theater/Store, L. A. Athletic Club, Metro Red Line subway, Per La Hotel, The Bloc, Fashion District, Disney Concert Hall, The Broad Museum, Hoxton/Proper/Freehand hotels, Grand Central Market, Corporation Food Hall, Flower Market, Sonoratown, Urban Outfitters, Kreation Organics, Broken Mouth, Holy Basil, Bottega Louie, Beelman's, Blu Jam Cafe, Buzz Wine Shop, FIGat7th, Spring Arcade, Sunday Farmers Market, The Last Bookstore, and much more.

Show More
Property Type Condominium
Lot Size 15,926 sq. ft.
Year Built 1911
MLS # 25623829
Listing Type Active
Heating Electric
Laundry Washer Included, Dryer Included, Inside

Payment Calculator

40% Complete (success)
80% Complete (danger)
20% Complete
80% Complete (danger)
60% Complete (warning)
Principal and Interest
Property Taxes
Homeowners' Insurance
HOA Dues
Mortgage Insurance
Image Calculator Icon Customize Calculations | Compare Mortgage Rates

Property Details for: 215 W 7th Street #307

Interior Features

Bathroom Information
  • 1 full bath
Laundry Information
  • Washer Included
  • Dryer Included
  • Inside
Heating & Cooling
  • Electric

Parking / Garage, Multi-Unit Information, Location Details

Exterior Features

Property / Lot Details

Property Features
  • City Lights
Lot Information
  • Lot Size (Sq. Ft) 15,926
Property Information
  • Attached
  • Tax Parcel Number: 5144026030

Nearby Businesses

  • Grocery Stores
  • Drug Stores
  • Coffee Shops
  • Restaurants
  • Health & Medical
  • Fitness & Activity
  • Arts & Entertainment
  • Nightlife & Bars
    Browse all businesses in Los Angeles, CA, 90014

    Tour This Condo

    FRIDAY

    5

    DEC

    SATURDAY

    6

    DEC

    SUNDAY

    7

    DEC

    MONDAY

    8

    DEC

    TUESDAY

    9

    DEC

    WEDNESDAY

    10

    DEC

    THURSDAY

    11

    DEC

    Schedule A Tour
    Ryan Case, Licensed Realtor & Team Lead

    Ryan Case

    Licensed Realtor & Team Lead

    213-449-4909 Contact Ryan Case
    Listing provided by agent Yuri Huxley BRE# 01917264 at Coldwell Banker Realty.

    Last Updated: 1 days ago